NOVENTA DI PIAVE
Italiano English
..Se vuoi vendere o acquistare casa e non solo provarci..

NOVENTA DI PIAVE

155.000 €
145 m2
2 Camere
3 Bagni
Codice
B517
Città
Noventa di Piave
Categoria
Villetta schiera
Locali
6
Box
2
Mq Box
39
Mq Giardino
320
mq Terrazzo
11
Classe energetica
G
190,67 kWh/m²a
Stato Immobile
Discrete Condizioni
Grado
Medio
Posizione
Periferia
Panorama
Vista Aperta
Orientamento
Est Sud Ovest
Lati Liberi
3
Giardino
Privato
Tipo Soggiorno
Soggiorno
Tipo Cucina
Abitabile
Riscaldamento
Autonomo
Tipo Riscaldam.
Caldaia
Tipo Impianto
Radiatori
Fonte Energetica
Metano
Acqua Calda
Autonoma
Raffrescamento
Split
Infissi
Legno
Serramenti
Mediocre
Persiana
Tapparella PVC
Pavim. Giorno
Cotto
Pavim. Notte
Parquet
Pavim. Cucina
Cotto
Pavim. Bagno
Ceramica
Accessori
Antifurto, Aria Condizionata, Cancello Elettrico, Lavanderia, Ripostiglio
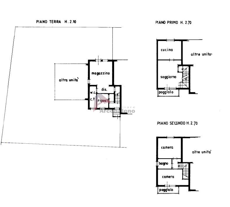
B517 - A Noventa di Piave, a breve distanza dal centro e da tutti i principali servizi, proponiamo una porzione di casa completamente indipendente, ideale per chi desidera spazi generosi, privacy e la possibilità di personalizzare gli ambienti secondo il proprio stile.

L’abitazione si sviluppa su tre livelli. Al piano terra accoglie la classica e funzionale zona servizi con ingresso, ripostiglio, lavanderia, magazzino con la concreta possibilità di essere trasformato in taverna o stanza pluriuso, oltre a un garage doppio dotato di basculante elettrico. Salendo al primo piano troviamo la zona giorno, composta da un luminoso soggiorno con uscita su terrazzo verandato, cucina abitabile e wc di servizio. Il livello superiore è dedicato alla zona notte, con due camere da letto di generose dimensioni, una delle quali arricchita da terrazzo e ripostiglio, e un ampio bagno padronale.

All’esterno, la proprietà è valorizzata da uno scoperto privato di oltre 300 mq, perfetto per vivere momenti all’aria aperta in totale tranquillità.
L’immobile dispone inoltre di ingresso pedonale e carraio indipendenti, aria condizionata e impianto di allarme.

Una soluzione davvero interessante per chi è alla ricerca di una casa di ampie metrature da ultimare e personalizzare, senza rinunciare alla serenità di una zona residenziale e alla comodità di avere tutti i servizi a portata di mano.
Contattaci per maggiori informazioni!
Alessandra

Mappa

Via Ca' Memo , Noventa di Piave (VE)

Richiedi informazioni

Invia

Ti consigliamo anche

460.000 €
Villa Bifamiliare In Vendita a Noventa di Piave
5 Camere 3 Bagni 188 m2

Condividi

Whatsapp
Cookie preference